株式会社LANCE|不動産×リノベーション>リノベーション事例

リノベーション事例

目黒太陽マンション 5F

Photo

【外観】 | 目黒太陽マンション 5F | 新規内装スケルトンフルリノベーション!現在スケルトン状態です。いつでも見学可能でございます。
【内装】 | 目黒太陽マンション 5F | 新築分譲時の間取りです。
【外観】 | 目黒太陽マンション 5F | 東側眺望写真です。城南五山「池田山」エリア!
【外観】 | 目黒太陽マンション 5F | 南側眺望写真です。大通りから1番離れた住戸の為、閑静な部屋位置!
【外観】 | 目黒太陽マンション 5F | 南側バルコニー。大通りから1番離れた住戸の為、閑静な部屋位置!
【外観】 | 目黒太陽マンション 5F | 南側バルコニー。大通りから1番離れた住戸の為、閑静な部屋位置!
【外観】 | 目黒太陽マンション 5F | メールボックス取替工事実施済み!
【外観】 | 目黒太陽マンション 5F | 固都税年額102,300円
【外観】 | 目黒太陽マンション 5F | 2022年度大規模修繕工事検討中!
【外観】 | 目黒太陽マンション 5F | 修繕費総額39,645,708円(2021年3月31日現在)
【外観】 | 目黒太陽マンション 5F | 管理体制良好!日勤(9時~14時/月火木金土)
【外観】 | 目黒太陽マンション 5F | 雨に濡れない内廊下設計!
【外観】 | 目黒太陽マンション 5F | 各戸玄関ドア取替工事実施済み!
【外観】 | 目黒太陽マンション 5F | 無償トランクルーム付き!
【外観】 | 目黒太陽マンション 5F | 1階部分ゴミ置き場。管理体制良好!
【外観】 | 目黒太陽マンション 5F | 屋根付き駐輪場、空き有りです。バイク置き場も空きございます。
【外観】 | 目黒太陽マンション 5F | 敷地内平置駐車場2台空有!
【外観】 | 目黒太陽マンション 5F | 楽器演奏「可」です。
【外観】 | 目黒太陽マンション 5F | 耐震補強工事実施済み!

Floor plan

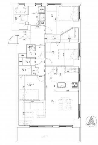
【間取り】 | 目黒太陽マンション 5F | リノベーション後のお引き渡し。参考プランです。

トップへ戻る

AIと見る リノベーション事例公開中!

×CLOSE